






施耐德寶光(SSBEA)真空斷路器
施耐德(陜西)寶光電器有限公司(簡稱SSBEA或施耐德寶光)是施耐德電氣(中國)有限公司與陜西寶光集團有限公司共同組建的一家專業從事中、高壓真空斷路器、系統及相關產品研發、生產和銷售的中外合資企業。施耐德寶光總部位于國內中高壓產業基地陜西省寶雞市科技園區。
在世界五百強企業與中國中壓電器企業的通力合作下,作為國內中壓行業著名的“寶光”品牌真空斷路器的唯一合法生產商,施耐德寶光秉承精益的生產科學理念,憑借品質過硬、安全可靠的全系列品質產品和覆蓋用戶全生命周期的完善服務,幫助用戶實現卓越的生產運營績效和市場競爭力,用品質實現可持續發展之道。
我們致力于將施耐德寶光打造成為中國卓越和高效的中壓斷路器和系統的制造平臺,依托自身的專業優勢,為廣大用戶和合作伙伴提供領先的總成本和長期全面的安心保障。
“施耐德寶光有自主研發并具有設計理念、獨立知識產權、權威機構認證的VBG、VBGs等系列高壓真空斷路器、智能柱上開關、鐵道雙極開關、芬蘭進口的微機綜合保護測控裝置等。公司產品覆蓋面廣,全面滿足客戶在12kV、24kV、40.5kV輸配電系統的應用需求,并廣泛服務于電力、能源、石化、煤炭、鋼鐵、冶金、制造、交通、建筑、環保等諸多行業,大型企業和國家重點工程項目。產品全面覆蓋中國大陸,并邁向國際市場。
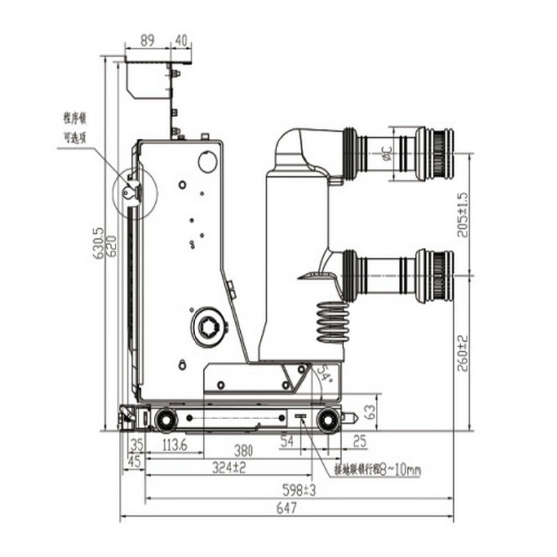
新一代 VBG-12P 是施耐德寶光在 30 多年斷路器制造經驗的基礎上,隆重推出的 VBG 系列升級產品。此產品是額定電壓 12kV、交流 50/60Hz 的戶內開關設備元器件。
產品符合標準:
GB/T1984-2014《高壓交流真空斷路器》
GB/T11022-2011《高壓開關設備和控制設備標準的共用技術要求》
NB/T10091-2018《高壓開關設備溫度在線監測裝置技術規范》
NB/T42044-2014《3.6kV~40.5kV 智能交流金屬封閉開關設備和控制設備》
IEC62271-100《高壓開關設備和控制設備第 100 部分:高壓交流斷路器》標準
此產品除滿足正常配電網使用要求的功能外,新增斷路器自我診判,自我分析,自我預測功能,實現對設備全生命周期的管理維護,幫助使用者清晰的判斷產品的健康狀態,將原有的預防性定期維護計劃調整為以設備健康狀態為依據而進行的預測性維護,實現按需維護的工作模式,大大降低設備后期運維成本,帶給使用者更多的增值服務。
iVBG 中壓開關智能化解決方案是我司基于 VBG 產品,融合傳感器技術、微機處理技術、自動控制技術、故障分析及診斷技術、信號處理與通信技術等,采集并存儲 VBG 多項運行數據信息,按標準通信規約將數據上傳至主站、專家診斷云平臺。配合我公司開發的專家診斷系統 EHS,實現智能的在線監測開關設備的狀態:綜合評判開關設備的健康情況,排查設備的隱患,降低預防性試驗和定期檢修的次數。斷路器故障后能夠實現準確定位故障、快速分析故障原因,提供直觀可視化的數據報告,加快故障處理速度,減少經濟損失。
上海煜柯銷售施耐德寶光(SSBEA)真空斷路器,提供斷路器,接觸器以及開關成套設備。